Oferta

Home / Oferta

Oferta


Mieszkanie Sprzedaż: Gdańsk Stogi
Nr oferty HA015825
Liczba pokoi 2
Piętro / Ilość pięter 7 / 10
Cena metra 11 263 PLN
Cena 428 000 PLN
Cena 428 000 PLN
Powierzchnia 38.00 m2

Rezerwacja - umowa przedwstępna.

PAS NADMORSKI – 15 minut spacerem do plaży. Doskonale zlokalizowane oraz słoneczne mieszkanie dwupokojowe o pow. 38m2. Usytuowane na VII piętrze w jednoklatkowym, dziesięciopiętrowym  bloku przy ulicy Szpaki.

Lokalizacja:

- 15 minut spacerem do plaży.

- 3 minuty do jeziora „pusty staw” wokół którego urządzono piękne tereny spacerowe.

- 1 minuta do tramwaju (linia 2, 8, 9) oraz autobusu.

- w okolicy Lidl, Biedronka, apteka, przychodnia zdrowia, punkty usługowe itd.

- w najbliższej okolicy  szkoła podstawowa, przedszkole, pływalnia Stogi.


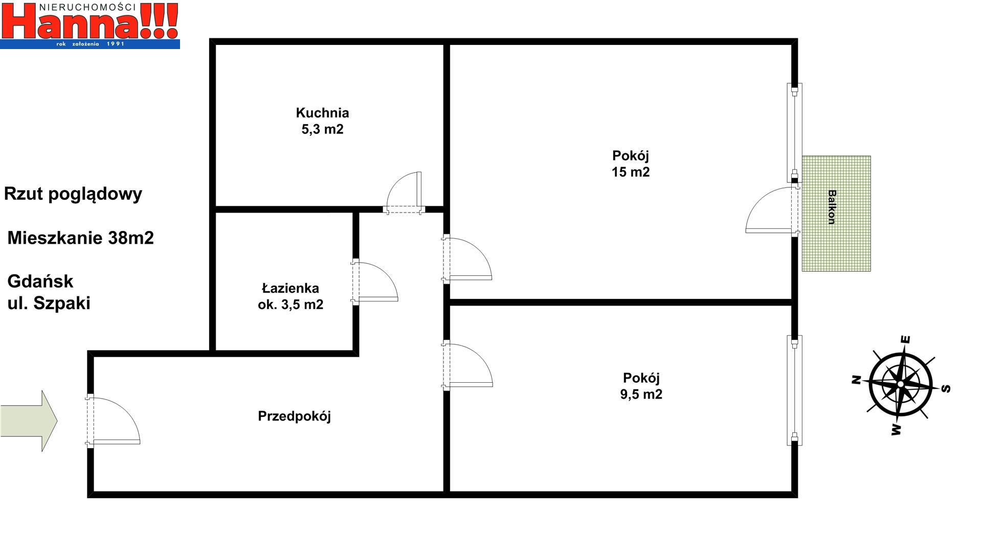
MIESZKANIE:   o powierzchni 38m2. Stan techniczny do odświeżenia. Na podłogach panele w dobrym stanie. Instalacja elektryczna miedziana. Mieszkanie jest bardzo ciepłe oraz słoneczne. Okna na stronę południową z widokiem na martwą Wisłę i panoramę dzielnicy oraz Gdańska.

W skład mieszkania wchodzi:

- Pokój dzienny o pow. 15m2 z wyjściem na balkon. Podłogi panele.

- Sypialnia o pow. 9,5m2. Podłogi panele.

- Kuchnia  o pow. ok. 5m2. Z możliwością połączenia z salonem.

- Łazienka (3,5m2) z wanną.

- Przedpokój o pow. 5m2 – z zabudowaną szafą.


Do dyspozycji Właściciela piwnica.

Czynsz około letni 500 zł / zimowy 700 zł.

 

ATUTY NIERUCHOMOŚCI:

- Bliskość plaży (1,5 km), terenów spacerowych oraz infrastruktury miejskiej. 

- Dobre nasłonecznienie. Południowa wystawa okien.

- Ładny widok. 

- Szybkie wydanie.

- Konkurencyjna cena.


BUDYNEK: dziesięciopiętrowy z przełomu lat 70-tych i 80-tych. Ocieplony. Zadbana klatka schodowa. Wokół bloku bardzo dużo ogólnodostępnych miejsc parkingowych.


Oferta dostępna tylko w HANNA!!! Nieruchomości. Pracujemy dla Państwa od 1991 roku. Doskonale znamy lokalne uwarunkowania rynku nieruchomości. Z przyjemnością pomożemy w całym procesie zakupu, załatwieniu formalności lub uzyskaniu kredytu.


Serdecznie zapraszam do kontaktu oraz na prezentacje w dogodnym terminie.

Michał Raszeja  698-914-641 ; e-mail: m.raszeja@hanna.pl

Ogólne warunki

Rynek Wtórny
Cena 428 000 PLN
Cena metra 11 263 PLN
Powierzchnia 38.00
Liczba pokoi 2
Piętro 7
Ilość pięter 10

Opis budynku

Typ budynku Blok mieszkalny
Rok budowy 1980
Rodzaj Własności Własność
Opłaty 600.00

Standard

Stan techniczny Do odświeżenia
Ogrzewanie C.o. miejskie
Balkon Balkon
Ogródek Nie
Umeblowane Tak
Winda Tak

Pomieszczenia

Wc osobno
Jasna kuchnia Nie

Parking / Garaż

Garaż Brak

Opiekun oferty

Michał RASZEJA 698 914 641 m.raszeja@hanna.pl






Mieszkanie Sprzedaż: Gdańsk Stogi
Nr oferty HA015825
Liczba pokoi 2
Piętro / Ilość pięter 7 / 10
Cena metra 11 263 PLN
Cena 428 000 PLN
Cena 428 000 PLN
Powierzchnia 38.00 m2

Rezerwacja - umowa przedwstępna.

PAS NADMORSKI – 15 minut spacerem do plaży. Doskonale zlokalizowane oraz słoneczne mieszkanie dwupokojowe o pow. 38m2. Usytuowane na VII piętrze w jednoklatkowym, dziesięciopiętrowym  bloku przy ulicy Szpaki.

Lokalizacja:

- 15 minut spacerem do plaży.

- 3 minuty do jeziora „pusty staw” wokół którego urządzono piękne tereny spacerowe.

- 1 minuta do tramwaju (linia 2, 8, 9) oraz autobusu.

- w okolicy Lidl, Biedronka, apteka, przychodnia zdrowia, punkty usługowe itd.

- w najbliższej okolicy  szkoła podstawowa, przedszkole, pływalnia Stogi.


MIESZKANIE:   o powierzchni 38m2. Stan techniczny do odświeżenia. Na podłogach panele w dobrym stanie. Instalacja elektryczna miedziana. Mieszkanie jest bardzo ciepłe oraz słoneczne. Okna na stronę południową z widokiem na martwą Wisłę i panoramę dzielnicy oraz Gdańska.

W skład mieszkania wchodzi:

- Pokój dzienny o pow. 15m2 z wyjściem na balkon. Podłogi panele.

- Sypialnia o pow. 9,5m2. Podłogi panele.

- Kuchnia  o pow. ok. 5m2. Z możliwością połączenia z salonem.

- Łazienka (3,5m2) z wanną.

- Przedpokój o pow. 5m2 – z zabudowaną szafą.


Do dyspozycji Właściciela piwnica.

Czynsz około letni 500 zł / zimowy 700 zł.

 

ATUTY NIERUCHOMOŚCI:

- Bliskość plaży (1,5 km), terenów spacerowych oraz infrastruktury miejskiej. 

- Dobre nasłonecznienie. Południowa wystawa okien.

- Ładny widok. 

- Szybkie wydanie.

- Konkurencyjna cena.


BUDYNEK: dziesięciopiętrowy z przełomu lat 70-tych i 80-tych. Ocieplony. Zadbana klatka schodowa. Wokół bloku bardzo dużo ogólnodostępnych miejsc parkingowych.


Oferta dostępna tylko w HANNA!!! Nieruchomości. Pracujemy dla Państwa od 1991 roku. Doskonale znamy lokalne uwarunkowania rynku nieruchomości. Z przyjemnością pomożemy w całym procesie zakupu, załatwieniu formalności lub uzyskaniu kredytu.


Serdecznie zapraszam do kontaktu oraz na prezentacje w dogodnym terminie.

Michał Raszeja  698-914-641 ; e-mail: m.raszeja@hanna.pl